HOME

EFFICIENCY
MEETS
ELEGANCE

At One Golden Mile, the efficient and elegant meet in perfect harmony. The pursuit of functionality and productivity as the core drivers of design has resulted in Vaastu-compliant floor plans which are optimal in terms of utility, serviceability, and modularity. The layout of each floor plan ensures that every office unit – regardless of size and location – gets refreshing views and natural light that fills even the elevator lobbies.

One Golden Mile has been designed with specifications and amenities that enable it to offer true differentiation in terms of user-experience because, ultimately, it’s always about you.

Floor plans

THINK BIG OR START SMALL

Our office spaces have been planned along the outer edge of the tower with adjoining service spaces within them. This helps provide an unobstructed view and natural light from every vantage point regardless of the size of the office.

Ground floor Plan

  • 01. Office porte cochere (social desk above)
  • 02. Office lobby
  • 03. Shuttle elevators
  • 04. Elevator lobby
  • 05. Surveillance lobby
  • 06. Toilets
  • 07. Fire and service lobby
  • 08. Staircase from basement to ground floor
  • 09. Delivery and pick-up centre for food and packages
  • 10. Security cabin
  • 11. Ramp to basements

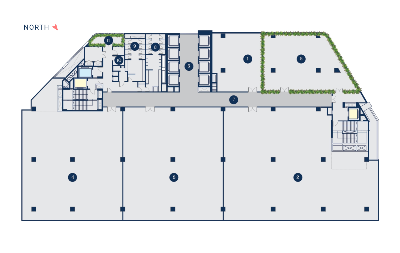
Typical Floor Plan

  • 01. Office 01 - 5,678 sq. ft.
  • 02. Office 02 -11,507 sq. ft.
  • 03. Office 03 - 8,518 sq. ft.
  • 04. Office 04 - 8,762 sq. ft.
  • 05. Elevator lobby
  • 06. 3.3m wide corridor
  • 07. Gents toilet
  • 08. Ladies toilet
  • 09. Pantry
  • 10. Break-out deck

LEVELS 2,3,5,6,7,9,1O,11,13,14

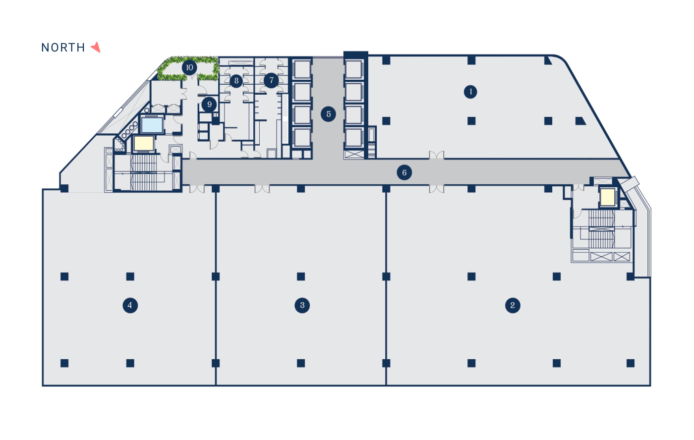
Refuge Floor Plan

  • 01. Office 01 - 2,116 sq. ft.
  • 02. Office 02 - 11,507 sq. ft.
  • 03. Office 03 - 8,518 sq. ft.
  • 04. Office 04 - 8,762 sq. ft.
  • 05. Refuge
  • 06. Elevator lobby
  • 07. 3.3m wide corridor
  • 08. Gents toilet
  • 09. Ladies toilet
  • 10. Pantry
  • 11. Break-out deck

LEVELS 4,8,12

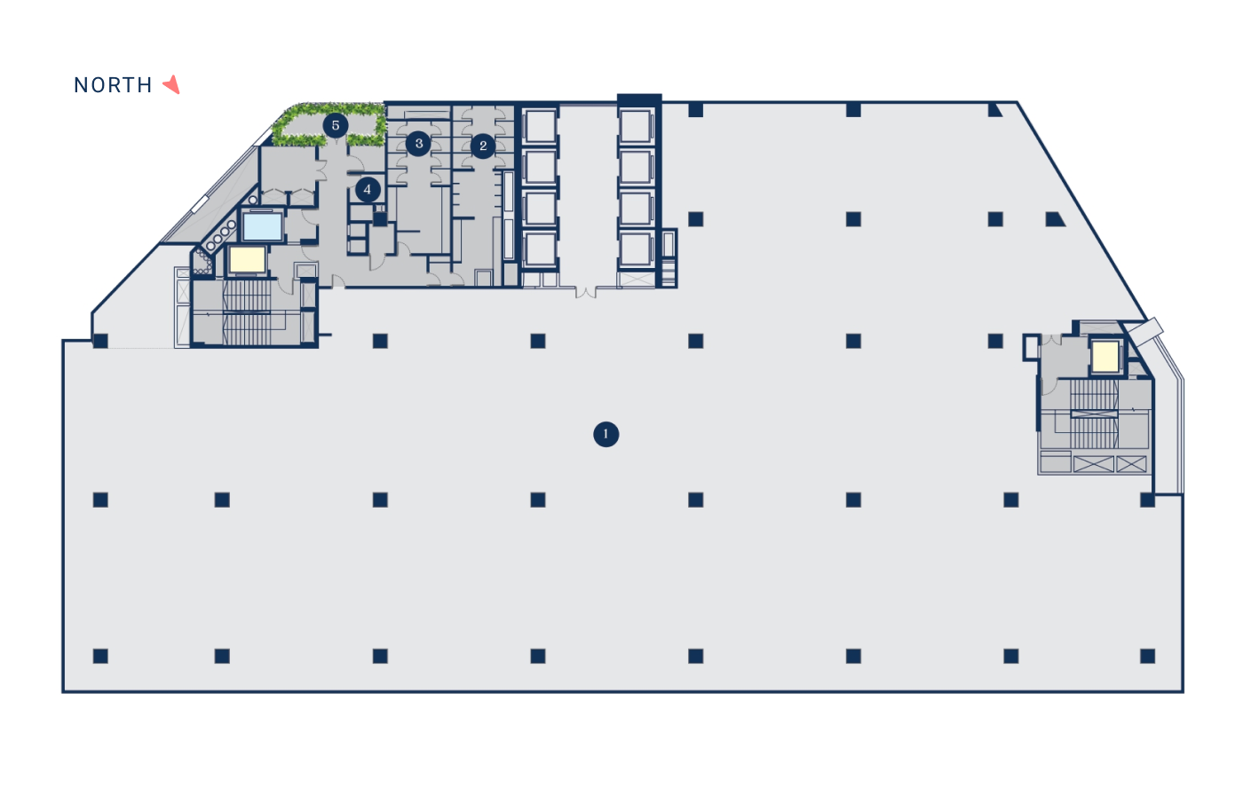
Single-Tenant Floor Plan

  • 01. Office 01 - 34,465 sq. ft.
  • 02. Gents toilet
  • 03. Ladies toilet
  • 04. Pantry
  • 05. Break-out deck

unit area

THE TERRACE HELIPAD

  • OFFICE O1 5637 SQFT
  • OFFICE O2 11425 SQFT
  • OFFICE O3 8457 SQFT
  • OFFICE O4 8699 SQFT

FLOOR PLATE 34218 SQFT

  • OFFICE O1 5637 SQFT
  • OFFICE O2 11425 SQFT
  • OFFICE O3 8457 SQFT
  • OFFICE O4 8699 SQFT

FLOOR PLATE 34218 SQFT

  • OFFICE O1 2101 SQFT
  • OFFICE O2 11425 SQFT
  • OFFICE O3 8457 SQFT
  • OFFICE O4 8699 SQFT

FLOOR PLATE 30682 SQFT

  • OFFICE O1 5637 SQFT
  • OFFICE O2 11425 SQFT
  • OFFICE O3 8457 SQFT
  • OFFICE O4 8699 SQFT

FLOOR PLATE 34218 SQFT

  • OFFICE O1 5637 SQFT
  • OFFICE O2 11425 SQFT
  • OFFICE O3 8457 SQFT
  • OFFICE O4 8699 SQFT

FLOOR PLATE 34218 SQFT

  • OFFICE O1 5637 SQFT
  • OFFICE O2 11425 SQFT
  • OFFICE O3 8457 SQFT
  • OFFICE O4 8699 SQFT

FLOOR PLATE 34218 SQFT

  • OFFICE O1 2101 SQFT
  • OFFICE O2 11425 SQFT
  • OFFICE O3 8457 SQFT
  • OFFICE O4 8699 SQFT

FLOOR PLATE 30682 SQFT

  • OFFICE O1 5637 SQFT
  • OFFICE O2 11425 SQFT
  • OFFICE O3 8457 SQFT
  • OFFICE O4 8699 SQFT

FLOOR PLATE 34218 SQFT

  • OFFICE O1 5637 SQFT
  • OFFICE O2 11425 SQFT
  • OFFICE O3 8457 SQFT
  • OFFICE O4 8699 SQFT

FLOOR PLATE 34218 SQFT

  • OFFICE O1 5637 SQFT
  • OFFICE O2 11425 SQFT
  • OFFICE O3 8457 SQFT
  • OFFICE O4 8699 SQFT

FLOOR PLATE 34218 SQFT

  • OFFICE O1 2101 SQFT
  • OFFICE O2 11425 SQFT
  • OFFICE O3 8457 SQFT
  • OFFICE O4 8699 SQFT

FLOOR PLATE 30682 SQFT

  • OFFICE O1 5637 SQFT
  • OFFICE O2 11425 SQFT
  • OFFICE O3 8457 SQFT
  • OFFICE O4 8699 SQFT

FLOOR PLATE 34218 SQFT

  • OFFICE O1 5637 SQFT
  • OFFICE O2 11425 SQFT
  • OFFICE O3 8457 SQFT
  • OFFICE O4 8699 SQFT

FLOOR PLATE 34218 SQFT

LEVEL 01 F&B | GYM

GROUND

OFFICE LOBBY

RETAIL

SPECIFICATIONS

RCC-framed structure

Sewage treatment plant (STP), rain-water harvesting and irrigation system for landscaping using STP water.

Automatic fire/smoke detection, fire/smoke management system per NBC norms

HVAC for the common areas

CCTV/surveillance cameras at all entry and exit points

High-speed elevators with DCS - Otis/ Thyssen Krupp/Schindler or equivalent

Walls with AAC blocks and mortar

External periphery finished with structural glazing (DGU)

Finish in cement mortar for internal walls

Entrance lobbies: Combination of granite marble and vitrified tiles Corridors: Vitrified tiles or equivalent Staircase & service rooms: Natural stone